Thiết kế nhà xưởng là bước đầu tiên và quan trọng nhất trong dự án xây dựng công nghiệp, để đảm bảo chất lượng công trình, công năng và tuân thủ các quy định pháp lý. Trong quá trình thiết kế, các bản vẽ đóng vai trò cực kỳ quan trọng, không chỉ giúp hình dung tổng thể công trình mà còn đảm bảo sự phối hợp hoàn hảo giữa các yếu tố như kết cấu, hệ thống kỹ thuật, an toàn phòng cháy chữa cháy và các yêu cầu cụ thể về chức năng sử dụng.
Vậy, một bản thiết kế nhà xưởng đầy đủ sẽ gồm những bản vẽ gì? Cùng BIC khám phá chi tiết các bản vẽ không thể thiếu trong quá trình thiết kế nhà xưởng, giúp tối ưu hóa không gian và nâng cao hiệu quả sản xuất.
Bản vẽ tổng thể (Site Plan) là bản vẽ mô tả vị trí của nhà xưởng trên khu đất, thể hiện cách bố trí các khu vực chức năng và các yếu tố ngoại vi như giao thông, cây xanh và hạ tầng. Đây là bản vẽ đầu tiên trong quá trình thiết kế nhà xưởng, giúp định hình không gian sử dụng và tối ưu hóa vị trí của các công trình trong khu đất.
- Lối vào: Vị trí cửa ra vào chính và các lối đi vào khu vực sản xuất, văn phòng, kho bãi.
- Giao thông nội bộ: Các tuyến đường giao thông bên trong khu đất, bao gồm đường đi bộ và đường xe cộ, giúp vận chuyển hàng hóa và nhân sự một cách thuận tiện.
- Khu vực phụ trợ: Các công trình phụ trợ như khu vực đỗ xe, nhà vệ sinh, khu vực nghỉ ngơi cho công nhân, hệ thống cấp thoát nước.
- Cây xanh: Vị trí và mật độ cây xanh, khu vực cảnh quan, vườn cây, giúp tạo không gian làm việc thân thiện, đồng thời cải thiện môi trường làm việc và bảo vệ môi trường xung quanh.
- Hạ tầng: Các yếu tố hạ tầng như hệ thống cấp điện, cấp nước, thoát nước mưa, xử lý chất thải, và các công trình hỗ trợ khác.
Bản vẽ tổng thể giúp chủ đầu tư và các bên liên quan hình dung rõ ràng và chi tiết về cách bố trí tổng thể nhà xưởng trên khu đất. Bản vẽ này không chỉ là nền tảng cho việc phân chia các khu vực chức năng mà còn đảm bảo sự lưu thông hiệu quả, tối ưu hóa không gian sử dụng và giảm thiểu các rủi ro trong quá trình thi công. Bản vẽ này cũng là cơ sở để các bản vẽ chi tiết khác được triển khai, từ đó giúp công trình hoàn thiện và hoạt động hiệu quả hơn.

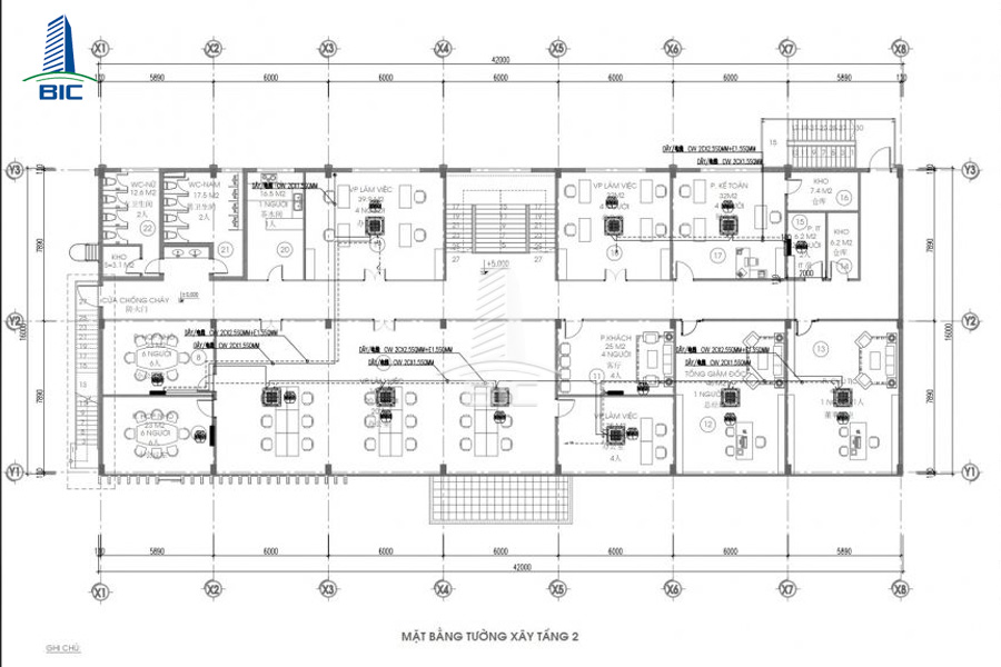
Bản vẽ mặt bằng công năng (Floor Plan) là bản vẽ thể hiện cấu trúc mặt bằng của các khu vực trong thiết kế nhà xưởng, chỉ rõ vị trí và mối quan hệ giữa các không gian chức năng. Đây là một trong những bản vẽ quan trọng giúp xác định cách bố trí và sử dụng hiệu quả các khu vực trong nhà xưởng, đảm bảo sự thuận tiện trong quá trình sản xuất và quản lý.
- Sản xuất: Khu vực chính của nhà xưởng, nơi các hoạt động sản xuất, gia công và lắp ráp được thực hiện. Các phân khu trong khu vực này có thể bao gồm dây chuyền sản xuất, khu vực kiểm tra chất lượng và bảo trì thiết bị.
- Kho bãi: Khu vực lưu trữ nguyên liệu, vật tư, sản phẩm thành phẩm hoặc bán thành phẩm. Bản vẽ cần xác định rõ vị trí của các kho lạnh, kho vật liệu dễ cháy, kho hóa chất (nếu có), nhằm đảm bảo an toàn và thuận tiện trong việc lưu trữ.
- Văn phòng: Khu vực làm việc cho các nhân viên quản lý, kỹ thuật, hành chính và các bộ phận hỗ trợ khác. Cần bố trí hợp lý với các phòng làm việc, phòng họp, khu vực tiếp khách và các tiện ích hỗ trợ.
- Vệ sinh: Các khu vực vệ sinh dành cho nhân viên, bao gồm nhà vệ sinh, phòng tắm, khu thay đồ và các khu vực tiện ích khác để đảm bảo sức khỏe và sự tiện nghi cho người lao động.
- Phụ trợ: Bao gồm các khu vực như phòng nghỉ ngơi cho công nhân, khu vực ăn uống, phòng kỹ thuật, phòng bảo trì và các khu vực hỗ trợ khác phục vụ cho hoạt động của nhà xưởng.

Bản vẽ mặt bằng công năng giúp đảm bảo công năng sử dụng hợp lý và tối ưu không gian trong nhà xưởng. Bằng cách bố trí các khu vực chức năng trong bản vẽ thiết kế nhà xưởng một cách khoa học và hợp lý, bản vẽ này không chỉ nâng cao hiệu quả công việc mà còn giảm thiểu các chi phí vận hành, đảm bảo an toàn lao động và tuân thủ các yêu cầu về môi trường làm việc. Hơn nữa, mặt bằng công năng cũng tạo điều kiện thuận lợi cho việc di chuyển và vận hành các thiết bị, giúp tăng cường hiệu suất làm việc và giảm thiểu thời gian chết trong quá trình sản xuất.
Bản vẽ kiến trúc (Architectural Drawings) là bản vẽ mô tả chi tiết về kết cấu kiến trúc của nhà xưởng, bao gồm các yếu tố như hình dáng, kích thước, vật liệu sử dụng, và cách bố trí các bộ phận của công trình. Đây là bản vẽ thể hiện thiết kế của ngoại thất và nội thất, giúp nhà xưởng không chỉ hoạt động hiệu quả mà còn đảm bảo tính thẩm mỹ và bền vững trong thời gian dài.
- Mái: Thiết kế mái của nhà xưởng cần được tính toán kỹ lưỡng để đảm bảo độ bền và khả năng chịu tải tốt, đồng thời phù hợp với các yếu tố khí hậu như mưa, nắng. Các kiểu mái phổ biến bao gồm mái bằng, mái dốc hoặc mái tôn lợp.
- Tường: Các loại tường bao che, tường ngăn cách các khu vực trong nhà xưởng cần được lựa chọn sao cho phù hợp với yêu cầu về độ bền, cách nhiệt, cách âm, và khả năng chống cháy. Bản vẽ kiến trúc sẽ xác định kích thước, cấu trúc và vật liệu tường.
- Cửa sổ: Cửa sổ trong nhà xưởng không chỉ có tác dụng chiếu sáng tự nhiên mà còn cần đảm bảo khả năng thông gió. Vị trí và kích thước cửa sổ được thiết kế sao cho tối ưu cho việc lưu thông không khí và ánh sáng trong không gian sản xuất.
- Cửa ra vào: Thiết kế nhà xưởng với cửa ra vào cho nhà xưởng phải đảm bảo tính tiện dụng và an toàn. Các cửa chính và cửa phụ phải dễ dàng di chuyển hàng hóa, có thể mở rộng khi cần thiết và phù hợp với yêu cầu an toàn phòng cháy chữa cháy.

Bản vẽ kiến trúc đóng vai trò quan trọng trong việc xác định hình thức và cấu trúc của nhà xưởng không chỉ đảm bảo công trình có tính thẩm mỹ mà còn phải đáp ứng các yêu cầu kỹ thuật về sử dụng lâu dài và hiệu quả. Một thiết kế kiến trúc hợp lý sẽ giúp giảm thiểu chi phí bảo trì và sửa chữa trong tương lai, đồng thời tạo ra một môi trường làm việc thuận tiện và an toàn cho công nhân. Bản vẽ kiến trúc cũng góp phần tăng cường tính bền vững của công trình, giúp nhà xưởng hoạt động ổn định trong suốt quá trình sử dụng.
Bản vẽ kết cấu (Structural Drawings) là bản vẽ chi tiết thể hiện các yếu tố kết cấu của nhà xưởng, bao gồm các bộ phận chịu lực như móng, cột, dầm, sàn và các cấu kiện khác. Đây là bản vẽ quan trọng trong thiết kế nhà xưởng về việc xác định sức chịu tải, khả năng chịu lực và tính ổn định của công trình, giúp bảo đảm an toàn cho người sử dụng và độ bền lâu dài của nhà xưởng.
- Móng: Móng là phần kết cấu quan trọng nhất, chịu toàn bộ trọng lực của công trình. Bản vẽ cần chỉ rõ loại móng (móng băng, móng cọc, móng đơn, v.v.) và các thông số kỹ thuật về kích thước, vật liệu, và cách thức thi công.
- Cột: Cột đóng vai trò nâng đỡ các tầng và mái của nhà xưởng. Các bản vẽ cần mô tả loại cột (cột bê tông cốt thép, cột thép, v.v.), kích thước và cách phân bố cột trong không gian nhà xưởng.
- Dầm: Dầm chịu lực phân tán từ mái và các tầng trên xuống các cột, giúp truyền tải trọng lực một cách hiệu quả. Bản vẽ dầm cần thể hiện rõ các thông số về kích thước, vật liệu và phương thức kết nối với cột và sàn.
- Sàn: Sàn là nơi diễn ra các hoạt động sản xuất và lưu trữ. Bản vẽ cần thể hiện các loại sàn (sàn bê tông, sàn thép, v.v.), độ dày, vật liệu sử dụng, và cách bố trí để đảm bảo khả năng chịu tải cho các hoạt động sản xuất.
- Cấu kiện chịu lực khác: Ngoài các yếu tố trên, bản vẽ kết cấu còn bao gồm các chi tiết về các cấu kiện phụ như giằng, kết cấu thép, kèo, cầu trục và các bộ phận chịu lực khác có liên quan.

Bản vẽ kết cấu đóng vai trò quyết định trong việc đảm bảo tính ổn định và an toàn của công trình xây dựng nhà xưởng. Một thiết kế kết cấu hợp lý sẽ giúp công trình chịu được các tác động từ trọng lực, lực động đất, lực gió và các yếu tố ngoại lực khác. Đảm bảo sự chắc chắn của các cấu kiện giúp công trình có tuổi thọ lâu dài, giảm thiểu chi phí bảo trì và sửa chữa, đồng thời tạo ra môi trường làm việc an toàn cho công nhân. Vì vậy, việc thiết kế kết cấu phải được thực hiện bởi các kỹ sư chuyên môn, dựa trên các tiêu chuẩn kỹ thuật và quy định an toàn hiện hành.
Bản vẽ hệ thống M&E (Mechanical and Electrical Drawings) là bản vẽ thể hiện thiết kế nhà xưởng thể hiện các hệ thống cơ điện trong nhà xưởng, bao gồm các hệ thống điện, cấp thoát nước, thông gió và điều hòa không khí. Đây là những hệ thống thiết yếu giúp đảm bảo hoạt động của nhà xưởng được diễn ra trơn tru, an toàn và hiệu quả.
- Hệ thống điện: Bản vẽ điện cần chỉ rõ các đường dây cấp điện, bảng điện, hệ thống chiếu sáng, ổ cắm, các thiết bị điện trong nhà xưởng và các khu vực khác. Đồng thời, cần có các sơ đồ về bảo vệ quá tải, ngắt mạch và hệ thống điện dự phòng như máy phát điện.
- Cấp thoát nước: Bao gồm các bản vẽ về hệ thống cấp nước cho sinh hoạt và sản xuất, hệ thống thoát nước mưa và nước thải. Các chi tiết về đường ống, bể chứa, hệ thống xử lý nước thải và các thiết bị vệ sinh cần được thể hiện rõ ràng.
- Thông gió: Hệ thống thông gió giúp cải thiện chất lượng không khí trong nhà xưởng, đảm bảo sự thông thoáng và giảm thiểu độ ẩm. Bản vẽ cần mô tả cách bố trí các cửa thông gió, quạt, hệ thống ống dẫn không khí, và các thiết bị thông gió khác.
- Điều hòa không khí: Hệ thống điều hòa không khí giúp duy trì nhiệt độ và độ ẩm phù hợp trong nhà xưởng, đặc biệt là trong các môi trường sản xuất yêu cầu điều kiện khí hậu đặc biệt. Bản vẽ cần chỉ rõ vị trí lắp đặt các hệ thống điều hòa, ống dẫn khí lạnh, hệ thống làm mát và các thiết bị điều chỉnh nhiệt độ.

Bản vẽ hệ thống M&E là yếu tố then chốt trong việc đảm bảo công năng vận hành của nhà xưởng. Thiết kế nhà xưởng đúng chuẩn giúp các hệ thống cơ điện hoạt động hiệu quả, từ đó đảm bảo sự liên tục trong sản xuất, tối ưu hóa chi phí vận hành và tiết kiệm năng lượng. Đồng thời, các hệ thống này phải tuân thủ các tiêu chuẩn kỹ thuật và quy định an toàn, đảm bảo an toàn cho công nhân và môi trường làm việc. Một thiết kế M&E hợp lý sẽ giúp giảm thiểu sự cố, tăng tuổi thọ của các thiết bị và mang lại hiệu quả cao trong việc vận hành công trình nhà xưởng.
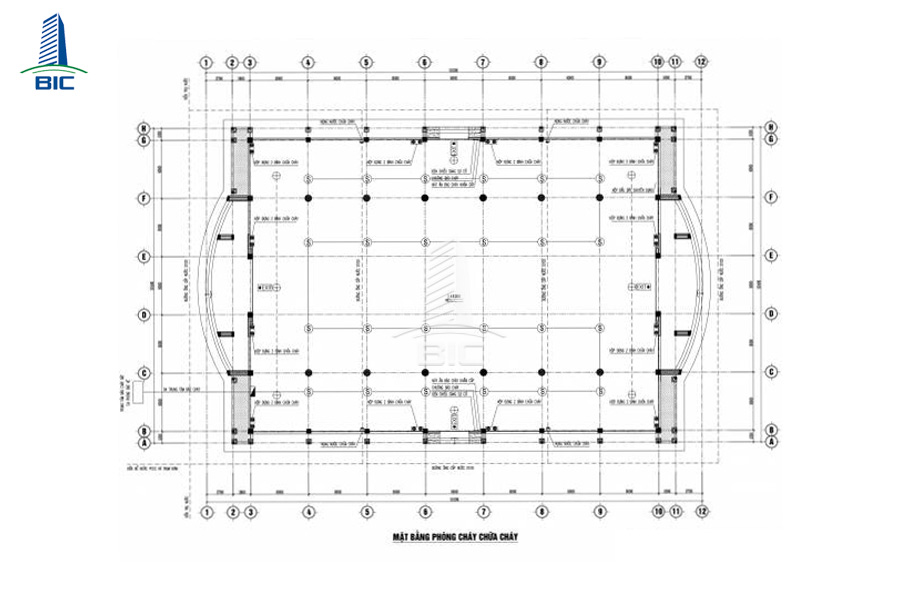
Bản vẽ phòng cháy chữa cháy (Fire Protection Drawings) là bản vẽ thiết kế hệ thống phòng cháy chữa cháy cho nhà xưởng, bao gồm các thiết bị, hệ thống báo cháy, và lối thoát hiểm. Đây là bản vẽ không thể thiếu trong thiết kế nhà xưởng, nhằm đảm bảo an toàn tuyệt đối cho công nhân và tài sản trước nguy cơ cháy nổ.
- Các thiết bị chữa cháy: Bao gồm bình cứu hỏa, vòi phun, hệ thống sprinkler (hệ thống phun nước tự động), bể nước chữa cháy và các thiết bị chữa cháy khác. Bản vẽ cần xác định rõ vị trí lắp đặt các thiết bị chữa cháy, số lượng và loại thiết bị phù hợp với từng khu vực trong nhà xưởng.
- Hệ thống báo cháy: Bao gồm các thiết bị cảnh báo cháy như còi báo cháy, đèn báo, cảm biến khói, cảm biến nhiệt độ. Bản vẽ phải chỉ rõ vị trí lắp đặt các cảm biến và hệ thống báo động để có thể phát hiện sớm nguy cơ cháy, đảm bảo kịp thời phản ứng và ứng phó.
- Lối thoát hiểm: Đây là các cửa thoát hiểm, cầu thang thoát hiểm và các lối đi được thiết kế để đảm bảo người lao động có thể rời khỏi khu vực nguy hiểm một cách an toàn trong trường hợp cháy nổ. Bản vẽ cần chỉ rõ các lối thoát hiểm, đảm bảo không bị cản trở và phù hợp với số lượng người làm việc trong nhà xưởng.

Bản vẽ phòng cháy chữa cháy là yếu tố cực kỳ quan trọng trong việc đảm bảo an toàn tuyệt đối cho công nhân và tài sản trong nhà xưởng. Một thiết kế nhà xưởng với hệ thống phòng cháy chữa cháy đảm bảo tuân thủ đúng tiêu chuẩn và bố trí hợp lý không chỉ giúp giảm thiểu thiệt hại trong trường hợp xảy ra sự cố mà còn giúp nhà xưởng tuân thủ các quy định pháp lý về an toàn cháy nổ. Các hệ thống báo cháy, chữa cháy và lối thoát hiểm phải được bố trí hợp lý, dễ dàng tiếp cận và hoạt động hiệu quả khi có tình huống khẩn cấp, nhằm bảo vệ tính mạng con người và tài sản của doanh nghiệp.
Bản vẽ hệ thống đường nội bộ là bản vẽ thiết kế giao thông nội bộ trong nhà xưởng, bao gồm các tuyến đường đi lại cho xe cộ và người đi bộ. Đây là phần thiết kế nhà xưởng quan trọng giúp phân chia không gian một cách hợp lý, thuận tiện cho việc vận chuyển nguyên vật liệu, hàng hóa và di chuyển của công nhân trong nhà xưởng.
- Đường giao thông: Bản vẽ cần chỉ rõ các tuyến đường chính và phụ trong khuôn viên nhà xưởng, bao gồm các đường xe tải, xe nâng, và xe cơ giới. Đường giao thông cần được thiết kế rộng rãi, dễ dàng tiếp cận tất cả các khu vực trong nhà xưởng, nhằm đảm bảo việc vận chuyển nguyên vật liệu, sản phẩm dễ dàng và an toàn.
- Bãi đỗ xe: Bản vẽ cần xác định các khu vực đỗ xe cho nhân viên, khách hàng hoặc các phương tiện vận chuyển hàng hóa. Các bãi đỗ xe cần được phân chia rõ ràng, tránh làm tắc nghẽn giao thông trong khu vực nhà xưởng. Cũng cần lưu ý đến các yêu cầu về không gian đỗ xe cho các phương tiện đặc biệt như xe tải, xe container nếu có.
Bản vẽ hệ thống đường nội bộ đóng vai trò quan trọng trong việc đảm bảo tính hiệu quả và sự thuận tiện trong quá trình vận hành nhà xưởng. Một hệ thống giao thông nội bộ hợp lý giúp việc di chuyển của nhân viên, phương tiện vận chuyển và máy móc được thuận tiện và nhanh chóng, giảm thiểu thời gian chết trong quá trình sản xuất. Đồng thời, việc bố trí đường giao thông và bãi đỗ xe hợp lý giúp tối ưu hóa không gian, giảm thiểu sự tắc nghẽn và bảo đảm an toàn trong mọi tình huống.
Bản vẽ kỹ thuật hệ thống thông gió và điều hòa (HVAC Drawings) là bản vẽ thiết kế hệ thống thông gió và điều hòa không khí trong thiết kế nhà xưởng. Hệ thống HVAC giúp điều chỉnh và duy trì nhiệt độ, độ ẩm và chất lượng không khí trong không gian làm việc, từ đó tạo ra môi trường làm việc thoải mái và an toàn cho công nhân, đồng thời hỗ trợ hiệu quả trong quá trình sản xuất.
- Hệ thống thông gió: Bao gồm các cửa thông gió, ống dẫn không khí, quạt hút, và quạt thông gió. Hệ thống thông gió cần được thiết kế sao cho không khí có thể lưu thông tốt, giúp loại bỏ không khí ô nhiễm và cung cấp không khí tươi mới cho nhà xưởng.
- Hệ thống điều hòa không khí: Cần có các thiết bị điều hòa, máy lạnh công nghiệp, hệ thống làm mát hoặc làm nóng tùy theo yêu cầu của từng khu vực trong nhà xưởng. Các ống dẫn khí lạnh, các dàn nóng, dàn lạnh, và hệ thống phân phối khí lạnh cần được thiết kế sao cho hiệu quả và tiết kiệm năng lượng.
- Máy lọc không khí: Trong các môi trường sản xuất có các yếu tố ô nhiễm hoặc bụi bẩn, hệ thống lọc không khí là một yếu tố cần thiết. Bản vẽ cần chỉ rõ các bộ lọc, máy hút bụi và hệ thống lọc không khí trung tâm.
- Hệ thống điều chỉnh độ ẩm: Đối với những nhà xưởng yêu cầu kiểm soát độ ẩm (như trong sản xuất thực phẩm hoặc dược phẩm), cần có hệ thống điều chỉnh độ ẩm tự động. Bản vẽ cần thể hiện các thiết bị kiểm soát độ ẩm như máy phun sương hoặc máy hút ẩm.
- Bộ điều khiển và cảm biến: Các bộ điều khiển trung tâm để giám sát và điều chỉnh nhiệt độ, độ ẩm, và tốc độ gió trong nhà xưởng. Các cảm biến nhiệt độ, độ ẩm và chất lượng không khí cũng cần được tích hợp vào hệ thống để duy trì môi trường làm việc tối ưu.

Hệ thống thông gió và điều hòa không khí đóng vai trò quan trọng trong việc duy trì một môi trường làm việc tốt, tạo điều kiện thuận lợi cho công nhân trong suốt quá trình sản xuất. Một không gian làm việc với không khí trong lành, nhiệt độ và độ ẩm được kiểm soát sẽ giúp tăng năng suất lao động, giảm căng thẳng và mệt mỏi cho người lao động.
Đồng thời, việc thiết kế và vận hành hệ thống HVAC hợp lý còn giúp tiết kiệm năng lượng, giảm thiểu chi phí vận hành lâu dài cho nhà xưởng. Bản vẽ HVAC cần đảm bảo các yếu tố như bố trí các ống dẫn, quạt, bộ lọc, hệ thống làm lạnh và làm nóng, nhằm tối ưu hóa hiệu quả hoạt động và tiết kiệm chi phí.
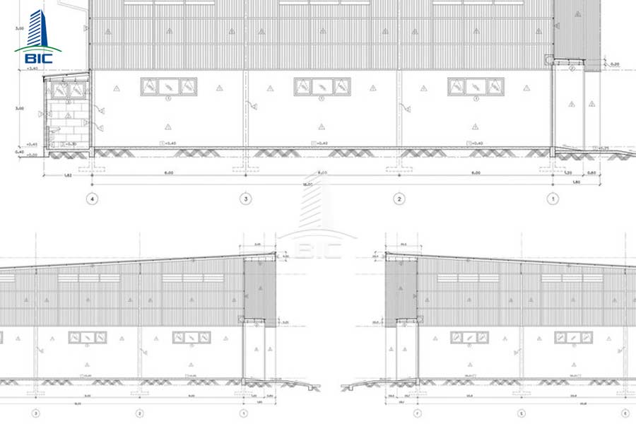
Bản vẽ mặt cắt (Sectional Drawings) là các bản vẽ cắt ngang qua nhà xưởng, thể hiện chi tiết về cấu trúc và các tầng trong công trình. Thông qua bản vẽ này, các kỹ sư và nhà thầu có thể nhìn thấy cách các bộ phận của công trình được xếp đặt và tương tác với nhau, đặc biệt là các chi tiết liên quan đến chiều cao, kết cấu và không gian bên trong của nhà xưởng.
- Cấu trúc kết cấu: Bản vẽ mặt cắt phải thể hiện rõ các bộ phận kết cấu như móng, cột, dầm, tường, mái và các cấu kiện chịu lực khác. Các chi tiết này giúp hiểu rõ cách các bộ phận kết cấu của công trình kết nối với nhau.
- Chiều cao công trình: Cung cấp thông tin về chiều cao của các tầng, độ cao của từng khu vực như mái, sàn và các chi tiết cần thiết để đảm bảo không gian làm việc và vận hành được tối ưu.
- Hệ thống kỹ thuật: Bao gồm các hệ thống cấp điện, cấp nước, thông gió, điều hòa không khí, các hệ thống phòng cháy chữa cháy (PCCC) và các chi tiết liên quan đến các hệ thống này, giúp đảm bảo an toàn và hiệu quả trong quá trình sử dụng.
- Cách bố trí không gian: Cung cấp cái nhìn rõ ràng về không gian sử dụng của từng khu vực trong nhà xưởng, từ các phòng sản xuất, kho bãi, đến các khu vực phụ trợ như văn phòng, vệ sinh và phòng kỹ thuật.
- Mối quan hệ giữa các tầng: Hiển thị cách các tầng hoặc các khu vực trong nhà xưởng tương tác với nhau, đặc biệt là các mối nối giữa các sàn, cầu thang, giếng trời, giúp xác định sự liên kết giữa các phần trong công trình.
- Chi tiết về cửa, cửa sổ và lối thoát hiểm: Bản vẽ mặt cắt cũng cần chỉ rõ các cửa ra vào, cửa sổ, và các lối thoát hiểm, giúp dễ dàng theo dõi việc bố trí lối thoát trong trường hợp khẩn cấp.

Bản vẽ mặt cắt cung cấp cái nhìn sâu sắc về cấu trúc của công trình, giúp dễ dàng nhận diện các yếu tố như chiều cao các tầng, kết cấu mái, tường, cửa sổ, cửa ra vào và các hệ thống bên trong như cầu thang, giằng, và hệ thống kỹ thuật. Đây là bản vẽ cực kỳ quan trọng trong việc xác định độ sâu của các lớp cấu kiện, giúp đảm bảo sự chính xác trong thi công và kiểm tra tính ổn định của công trình. Bản vẽ mặt cắt còn hỗ trợ trong việc tính toán khối lượng vật liệu, xác định các vấn đề về thông gió, cách nhiệt và cách âm trong công trình, đồng thời giúp các kỹ sư dễ dàng phát hiện và điều chỉnh các vấn đề liên quan đến kết cấu nếu cần thiết.
Trong thiết kế nhà xưởng, các bản vẽ đóng vai trò quan trọng trong việc đảm bảo công năng, sự an toàn và hiệu quả cho công trình. Mỗi bản vẽ, từ bản vẽ tổng thể, mặt bằng công năng, kết cấu, đến các hệ thống kỹ thuật như HVAC và phòng cháy chữa cháy, đều góp phần không nhỏ vào việc tạo ra một không gian làm việc tối ưu, an toàn và bền vững. Bên cạnh đó, các yếu tố như hệ thống giao thông nội bộ, thông gió, điều hòa không khí cũng không thể thiếu để tối ưu hóa hiệu suất hoạt động của nhà xưởng.
Để đảm bảo chất lượng công trình, việc lựa chọn đơn vị thiết kế uy tín và có kinh nghiệm là vô cùng quan trọng. Một đơn vị thiết kế xây dựng chuyên nghiệp sẽ giúp bạn tối ưu hóa mọi yếu tố trong quá trình thiết kế, từ không gian sử dụng đến các hệ thống kỹ thuật, đảm bảo công trình không chỉ đạt chuẩn mà còn tiết kiệm chi phí vận hành. Liên hệ ngay với BIC để nhận tư vấn thiết kế nhà xưởng chuyên nghiệp, tối ưu chi phí và đảm bảo chất lượng công trình. Hãy để chúng tôi đồng hành cùng bạn trong việc xây dựng không gian sản xuất hiệu quả, an toàn và bền vững.