Overview of Loc Son Industrial Park has a strategic location for economic development in the area of Loc Son Ward, Bao Loc Town, Lam Dong Province, the industrial park is 3 km southeast of town, next to the hubs. main traffic. In the North, there is National Highway 20 connecting Ho Chi Minh City with Da Lat; To the west is National Highway 55 connecting with Binh Thuan provinces. Loc Son Industrial Park is located in the center of industrial crops, tea, coffee, mulberry, food crops and mining industry bauxite, kaolin... Attracting investment projects in the industry group: mineral processing industry products, construction material manufacturing industry, agro-forestry-food processing industry, textiles, mechanics, etc.
Pleased to introduce Loc Son Industrial Park, Lam Dong, details as follows:

Investor: Lam Dong Industrial Park Management Board
Location: Loc Son industrial park, Loc Son ward, Bao Loc town, Lam Dong province
110km from Ho Chi Minh City
80km from Da Lat Lien Khuong Airport, 190km from Tan Son Nhat International Airport
Distance from Binh Thuan port: 170 km
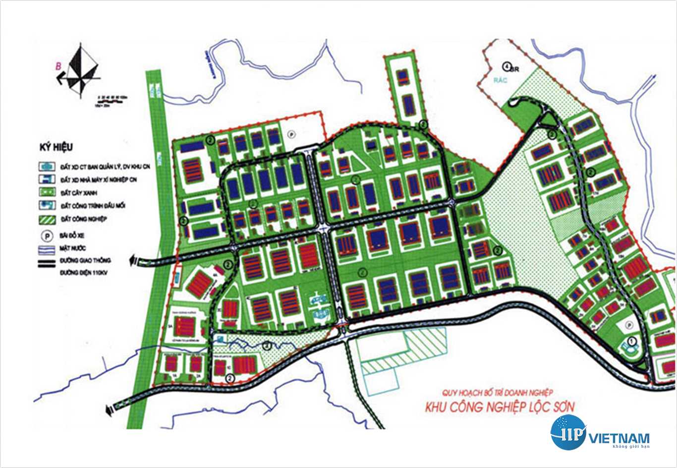
Area: With an area of 185 hectares, designed synchronously and modernly with a large internal traffic system, large green area, electricity, water supply and drainage in Loc Son industrial park in accordance with international standards of plots. flexible soil, suitable for many types of factories
Term: 50 years (since 2004)

Land legal: Red book
Industrial park orientation: Loc Son is oriented to be a multi-industry industrial park using modern high technology in accordance with international standards and being environmentally friendly, expected to attract industries such as:
Mechanical assembly, production of spare parts, electronic components
Consumer production, handicrafts
Textile industry
Food processing and agricultural products and some other industries
Human resources: Lam Dong province has a population of about 1,551 million people, of which the population structure has changed in a positive direction: The proportion of the population under 15 years old decreased from 29.37% in 2009 to 28.35% in 2012. In contrast, the proportion of the population aged 15-64 years (which is the main group of the labor force) increased from 66.19% in 2009 to 66.61%, and the population aged 65 and over increased. from 4.44% in 2009 to 5.04%.
Landscape: More than 12% of the total area of the industrial park is planted with trees along the roads and other areas
Lawns and public green areas are planted to improve the industrial environment
Projects to build factories and other buildings must be approved by management
Land condition: Average leveling height 9m/ Soil quality: hard leveled

Internal traffic system: reasonably designed to ensure smooth traffic throughout the industrial park. The system is designed as follows:
+ The main roads in the industrial park are 32 m wide - 4 lanes
+ Branch roads in the industrial park are 23 m wide - 2 lanes
All internal roads are designed and constructed in strict compliance with national regulations, and finished with Asphalt asphalt. The internal roads are also equipped with a complete, aesthetic high-pressure lighting system
Power supply system: The power supply to the industrial park is taken from 110/35/22KV substation. High voltage electricity network is provided along the internal traffic in the industrial park.
Water supply system: Clean water is supplied with a capacity of 30,000 m3 per day from the clean water plant. Water is supplied to the factory fence by an international standard water supply pipe system.
Waste water and waste treatment system: Waste water is collected to the industrial park's wastewater treatment plant to meet water standard A (QCVN 40:2011/BTNMT) before being discharged to the general system of the industrial park. The wastewater plant was built with a treatment capacity of 2,900m3/day – night
Waste is contracted by factories in the industrial park to classify, collect and transport garbage out of the industrial park to avoid causing environmental pollution.
Exhaust gases of factories are installed with national standard filtration systems before being discharged into the natural environment
Communication system: the industrial park is installed with an underground communication cable system and is provided to the fence of the factory by an international standard cable system.
Through the connection system between the communication center of the industrial park through the post and telecommunications network, all communication needs are guaranteed and are capable of providing all necessary services such as: Private switchboard , international telephone, teleconference, leased line, high speed internet, email, etc.
Fire prevention and fighting system: the industrial park is installed with a warning, prevention and fire fighting system in strict compliance with national regulations.
Fire hydrants are installed at internal traffic hubs, and at all factories to ensure effective protection of the whole area from fire and explosion incidents.
Management fee:
Industrial park management fee: 1USD/m2/year. This fee is paid annually in the first month of the year
Electricity fee: 0.1 USD during peak hours/ 0.05 USD during normal hours/ 0.03 USD during off-peak hours
Clean water usage fee: 0.40 USD/m3. The amount of clean water used is calculated according to the reading on the water meter
Waste water & solid waste treatment fee: $0.28/m3. Pre-treatment quality requirement is grade B after treatment is grade A