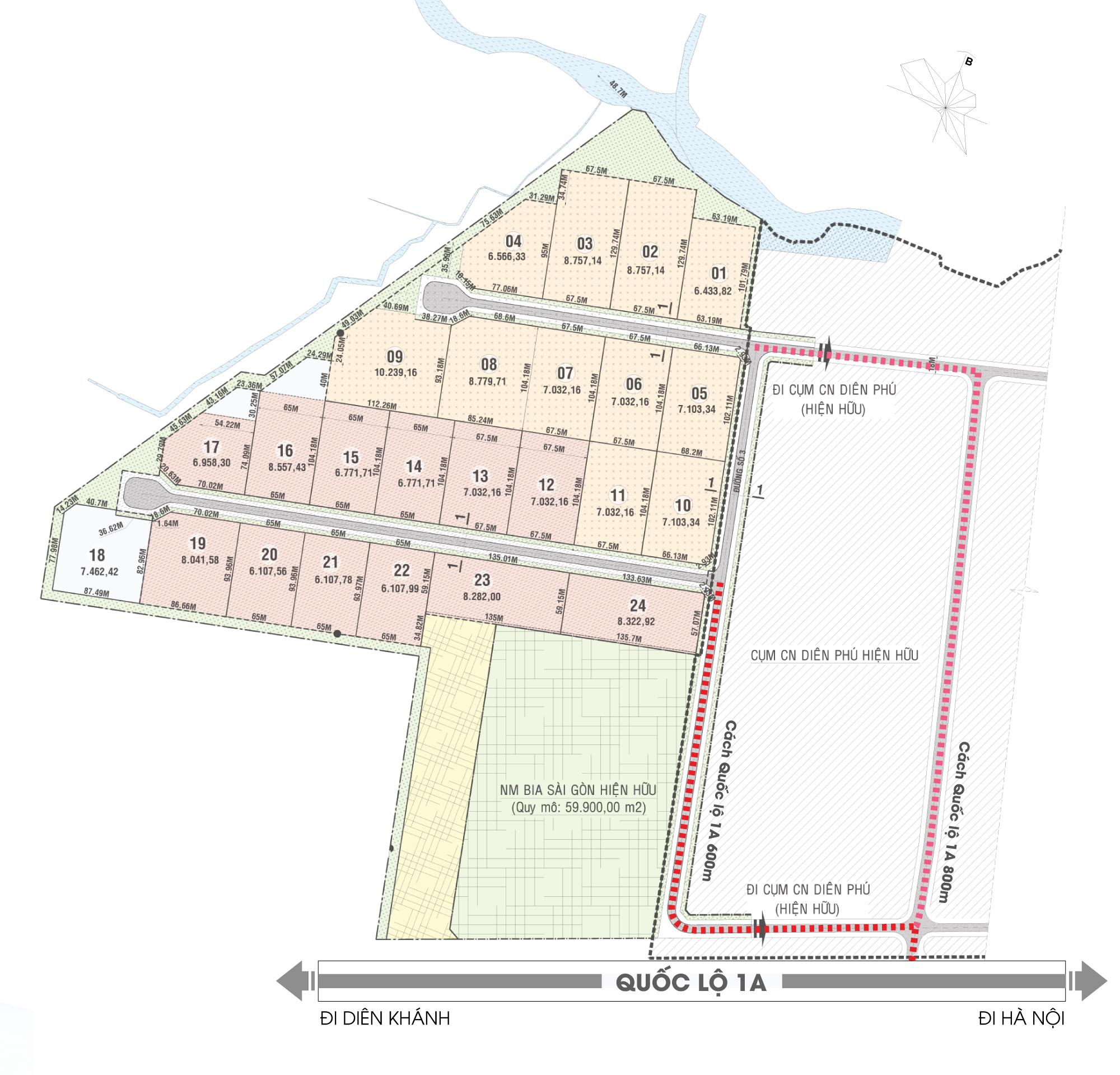
Highlights of Dien Phu Industrial Park. Dien Phu Industrial Park was established under the Decision of Khanh Hoa Provincial People's Committee in 2004 on industrial cluster planning.
Dien Phu Industrial Park has a planned area of 43.8 hectares, attracting 27 investment projects that have been put into operation. As a concentrated, multi-industry industrial cluster, the priority is clean industry without pollution, factory for rent.
Dien Phu Industrial Park is located in Dien Phu Commune, Dien Khanh District, Khanh Hoa Province. It is a very favorable condition for the circulation and operation of industrial zones and industrial zones. Since then, attracting a large number of workers from the provinces to the factory rental zones promises to bring highly qualified human resources to the Central industrial zone.

With that advantage, leasing warehouses or factories for rent is also a form of business in industrial clusters, bringing profits to investors as well as developing our country's economy.
Dien Phu Industrial Park has a total land area of 43.8 hectares, all projects have been put into operation, reaching 100% occupancy rate. Investment capital is supported by the State. Total infrastructure investment is about 58.8 billion VND. And is operated and managed by the Industrial Park Management Board. Currently, warehouse leasing is being promoted with preferential policies to attract investors here. The infrastructure of the industrial cluster is built in a synchronized way, with many features, according to international standards. Including:
The power system used is From 110 KV substation. Arranged in CCN 01 110/220 KV transformer station. Install 03 22/0.2 KV substations. stable power supply according to usage requirements.
The water system meets the needs of daily life as well as other production activities with a capacity of 000m3/day and is provided from Khanh Hoa Water Supply and Sewerage Joint Stock Company.

The drainage system is designed separately for rainwater and wastewater drainage.
Wastewater from factories in industrial clusters as well as daily life will be treated in a concentrated manner with a large capacity before being discharged into the wild.
Telecommunications services are installed with the system of VNPT's network according to international and advanced standards, helping to communicate both domestically and internationally.
Roads include an internal road with 2 lanes of 24-28m and a main road with four lanes of 35m to ensure that large displacement vehicles can enter. In the future, a new road will be built through the area.
The system of trees is covered according to the criteria of green - clean - beautiful in Khanh Hoa industrial park to limit the impact on the environment of the factory for rent.
The fire protection system is installed next to the clean water system to ensure the safety of the industrial cluster.
Dien Phu Industrial Park is a multi-industry cluster that produces clean industries, in order to limit the impact on the environment: manufacturing and processing mechanical products, manufacturing handicrafts, interior decoration, etc. furniture, aluminum frame cabinets, aluminum doors, ventilation systems, air conditioning systems, sports equipment, construction products from granite, agricultural product processing, beer production of all kinds, apparel, accessories garment industry, oxygen production, gas extraction. warehouse rental business.
Lease area: Negotiable
Operation time: expected to be 50 years from the time of granting the right

Utilities and services Dien Phu Industrial Park
Dien Phu Industrial Park focuses on developing into the leading industrial cluster in the country. Attracting a large labor force. Therefore, utilities and services must be placed first at the warehouse for rent.
To ensure the rights of employees:
Administrative office, operator
There are ATMs of banks and post offices
Strict protection system
Electricity and water system, shops, ..
Health clinic
There is a place of residence for the workers
Warehouse, fuel supply station
Police station, tax customs department
Parking